data-orbit>


Warning: count(): Parameter must be an array or an object that implements Countable in /home/customtouchhomes/public_html/wp-content/themes/cth/single.php on line 41
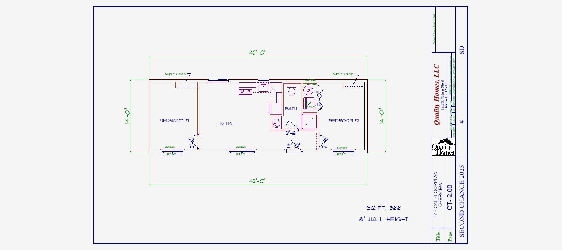
Second Chance 2025 – For Sale / Available for Viewing in Mitchell, SD
Visitor Center Houses (Available for Viewing) Model
- 14' x 42'Feet
- 588Square ft.
- 2Beds
- 1Baths
Features
- Stackable Washer/Dryer
- P-Tac Heating / Cooling
