data-orbit>


Warning: count(): Parameter must be an array or an object that implements Countable in /home/customtouchhomes/public_html/wp-content/themes/cth/single.php on line 41
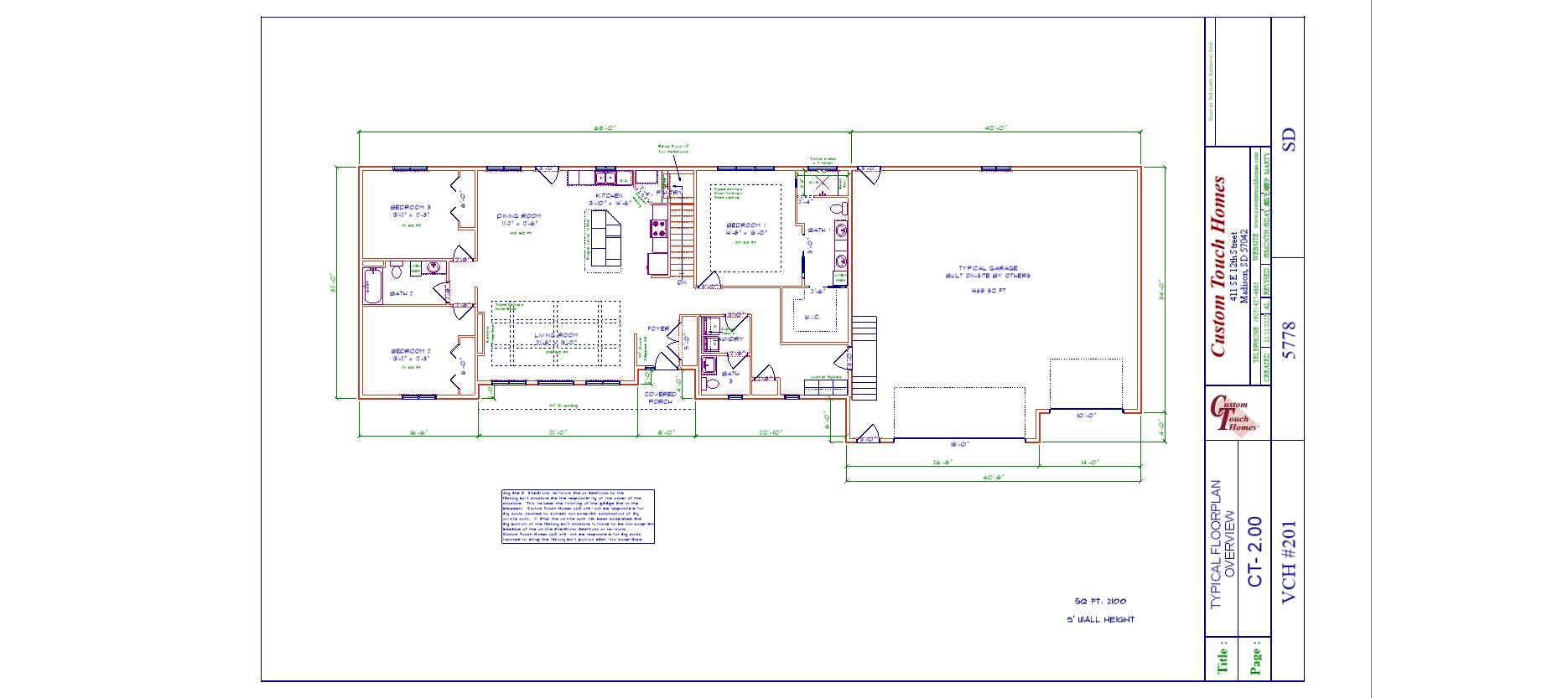
VCH #201 – For Sale / In Production on Plant Floor in Madison, SD
Single Family Homes Model
- 32' x 68'Feet
- 2100Square ft.
- 3Beds
- 2 1/2Baths
Features
- Trayed ceiling over Living Room with wood beams
- Trayed ceiling over Bedroom 1
